Skyltning
Add Access har lång erfarenhet av tillgänglig skyltning, vi har bland annat tagit fram skyltprogram åt Locum Fastigheter och Region Gotland.
Skyltar ska vara lättbegripliga och lättlästa, ha ljushetskontrast och vara placerade på lämplig höjd så att de kan läsas/höras såväl av personer som använder rullstol som av stående personer med nedsatt syn. 
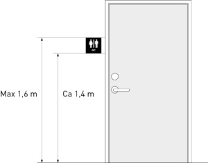
Identifikationsskyltar placeras 140 cm överkant vid dörrens handtagsida. Skyltbotten ska vara i kontrast mot väggen för lättare identifikation.
De bör placeras där man förväntar sig att de ska finnas och så att man kan komma tätt intill dem. De ska ha tydliga taktila symboler och text, samt vara kompletterade med brailletext.
Add Access erbjuder identifikations skyltar med olika symboler, som har taktil pictogram och text samt kompletterade med brailletext.

Skyltarna finns i två olika storlekar 150×150 mm eller 180×180 mm. Skyltarna levereras med dubbelhäftande tejp på baksidan eller hålade. Skyltarna finns i tre olika alternativ Svart/Vit, Vit/Svart eller Grå/Vit.
Kontakta oss i formuläret nedan så hjälper vi er med att skylta tillgängligt.

